
IGLO EDGE
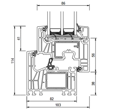
Nasze nowe, najbardziej zaawansowane technologiczne okno wyróżnia się doskonałym parametrem izolacji cieplnej wynoszącym Uw = 0,66 W/(m2K)* oraz nowoczesnym, kanciastym kształtem profilu o wysokości złożenia ramy + skrzydła wynoszącej tylko 114 mm. Za bardzo dobre parametry izolacji cieplnej odpowiada m.in. 7-komorowa budowa profilu oraz 3 uszczelki EPDM, w tym uszczelka centralna. Wyposażenie standardowe:
dwukomorowy pakiet szybowy Ug = 0,5 W/(m2K)
ciepła ramka tworzywowa Swisspacer Ultimate
zgrzew V-Perfect
4 zaczepy antywyważeniowe w zależności od wielkości skrzydła i systemu okuć
mikrowentylacja
aluminiowa klamka okienna DUBLIN
mechanizm blokady błędnego położenia klamki
uszczelki obwiedniowe, przyszybowe oraz centralna w kolorze czarnym lub szarym
wypełnienie dolnego rowka okuciowego
listwa podparapetowa
bogata kolorystyka oklein pvc
3 kolory profilu do wyboru: biały, brązowy lub antracytowy






Kolorystyka okien PVC
Ponad 30 kolorów oklein do wyboru.




Szyby
DRUTEX, posiadając ponad 30-letnie doświadczenie w produkcji szyb zespolonych proponuje bardzo bogatą ofertę szyb, w które można wyposażyć swoje okna i drzwi. Spełniają one restrykcyjne wymagania w zakresie energooszczędności, czy izolacyjności akustycznej. W ofercie także szyby laminowane (bezpieczne i antywłamaniowe), przeciwsłoneczne, o podwyższonej izolacji akustycznej, hartowane, ornamentowe i piaskowane.
